1 3 4 5 8 10 11 12 13 14 15 16 17 plattegrond 2e verdieping
1
3
4
5
Verkocht

Verkocht: Maasstraat 1C, 6051 CK Maasbracht

€ 259.000,- k.k.
Type object Appartement, bovenwoning
Aanvaarding In overleg
Woonoppervlakte 70 m²
Status Verkocht

Beschrijving

Ultiem genieten op niveau....

Dit INSTAPKLARE 2-SLAAPKAMER APPARTEMENT met prive berging zojuist NIEUW in de verkoop.

Indeling

Begane grond:
Gezamenlijke entree, brievenbussen, prive berging en opgang middels trappenhal naar...

2e verdieping:
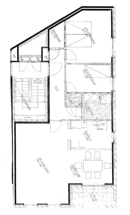
Entree/hal met voorraad-/bergkast, cv-ruimte, 2 slaapkamers (resp. 3.80x3.41 en 2.10x3.41m), toiletruimte met fonteintje, badkamer met witgoedaansluitingen (1.99x2.14m) , L-vormige eet-/woonkamer (32.0m2) met balkon (3.09x1.33m) en de half open keuken (2.15x3.09m). Vanuit de woonkamer alsook het balkon havenzicht.

Bijzonderheden

- Middels schuifpui is het balkon vanuit de eetkamer bereikbaar met havenzicht;
- Gehele appartement is afgewerkt met lichte stucwerk wanden, laminaatvloeren;
- Luxe geheel betegelde badkamer is voorzien van een douche, vaste wastafelmeubel, design radiator en tevens de witgoedaansluitingen;
- Maandelijkse servicekosten bestaan o.a. uit wa-, opstal- en glasverzekering, algemeen waterverbruik, elektraverbruik algemene ruimten, reservering onderhoud en bedragen € 87,50 p/m;
- Rondom geheel v.v. kunstof kozijnen met HR++ beglazing (2014) alsook rolluiken bij de slaapkamers en de keukenraam;
- Nefit HR Cv-installatie, eigendom, bouwjaar ca. 2016;
- Voldoende parkeergelegenheid rondom het appartementencomplex;
- Ter bescherming van de belangen van zowel koper als verkoper, wordt uitdrukkelijk gesteld dat een koopovereenkomst met betrekking tot deze onroerende zaak eerst dan tot stand komt nadat koper en verkoper de koopovereenkomst hebben getekend (“schriftelijkheidsvereiste”);
- De termijn die wordt opgenomen voor eventuele (overeengekomen) ontbindende voorwaarden (bv. Financiering) is in de regel 4 tot 6 weken na het sluiten van de mondelinge wilsovereenkomst;
- De waarborgsom/bankgarantie is 10% van de koopsom. De koper dient deze 2 weken ná het vervallen van de ontbindende voorwaarden bij de desbetreffende notaris te deponeren;
- Koper is te allen tijde gerechtigd voor eigen rekening een bouwkundige keuring te (laten) verrichten dan wel andere adviseurs te raadplegen teneinde een goed inzicht te verkrijgen over de staat van onderhoud.

Kenmerken

Overdracht
Referentienummer 07480
Vraagprijs € 259.000,- k.k.
Servicekosten € 87,50
Status Verkocht
Aanvaarding In overleg
Aangeboden sinds Woensdag 20 augustus 2025
Laatste wijziging Vrijdag 5 september 2025
Bouw
Type object Appartement, bovenwoning
Woonlaag 2e woonlaag
Soort bouw Bestaande bouw
Bouwperiode 1984
Oppervlaktes en inhoud
Woonoppervlakte 70 m²
Inhoud 175 m³
Oppervlakte externe bergruimte 5 m²
Indeling
Aantal bouwlagen 1
Aantal kamers 3 (waarvan 2 slaapkamers)
Energieverbruik
Heeft een energiecertificaat Ja
Energielabel C
CV ketel
Combiketel Ja
Kadastrale gegevens
Kadastrale aanduiding Maasgouw E 4700
Omvang Appartementsrecht of complex
Indexnummer 5

Kaart

Sluiten

Recent bekeken