Beschrijving
Bent u op zoek naar een woning waar u écht uw eigen stempel op kunt drukken?
Aan De Zeulk 4 in het prettige Maasdorp Wessem vindt u een robuuste basis met een zee aan ruimte (ruim 160 m² woonoppervlakte).
Deze woning biedt de unieke kans voor kopers die niet bang zijn om de handen uit de mouwen te steken en een huis willen transformeren tot hun droompaleis. Gelegen om 532 m2 eigen grond.
Hoewel de woning altijd met zorg is bewoond, biedt de huidige staat een prachtig canvas voor modernisering. Of u nu droomt van een riante woonkeuken met kookeiland, een strakke badkamer of het verduurzamen naar de maatstaven van 2026: hier krijgt u de ruimte om met wat aandacht uw eigen 'touch' aan te brengen.
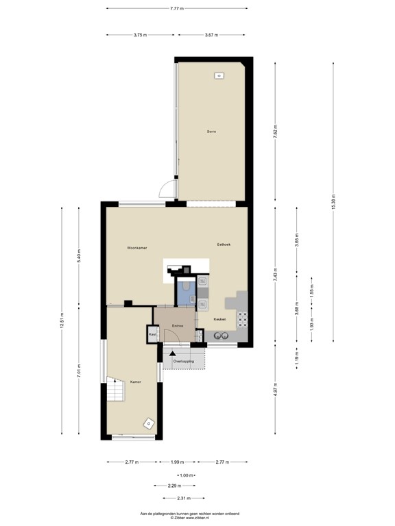
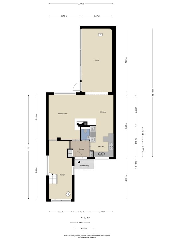
Indeling
Entree/hal, meterkast, toilet met fonteintje, halfopen keuken, eet-/ woonkamer, aanbouwserre/tuinkamer met grote schuifpui en heerlijk tuincontact en extra buitenberging.
Eerste verdieping
Overloop met daaraan gelegen de complete badkamer en drie slaapkamers.
Tweede verdieping
De zolder is bereikbaar middels vlizotrap, waar zich volop bergingsruimte bevindt. Verder is er nog een extra ruimte welke gebruikt kan worden als bergruimte of in te richten als ‘walk-in closet.’
Bijzonderheden
- Ter bescherming van de belangen van zowel koper als verkoper, wordt uitdrukkelijk gesteld dat een koopovereenkomst met betrekking tot deze onroerende zaak
eerst dan tot stand komt nadat koper en verkoper de koopovereenkomst hebben getekend (“schriftelijkheidsvereiste”);
- De termijn die wordt opgenomen voor eventuele (overeengekomen) ontbindende voorwaarden (bv. financiering) is in de regel 4 tot 6 weken na het sluiten van de
mondelinge wilsovereenkomst;
- De waarborgsom/bankgarantie is 10% van de koopsom. De koper dient deze 2 weken ná het vervallen van de ontbindende voorwaarden bij de desbetreffende
notaris te deponeren;
- Koper is te allen tijde gerechtigd voor eigen rekening een bouwkundige keuring te (laten) verrichten dan wel andere adviseurs te raadplegen teneinde een goed
inzicht te verkrijgen over de staat van onderhoud.
Wessem (Limburgs: Wissem of Wèssem) is een stad in de gemeente Maasgouw, in de Nederlandse provincie Limburg. Het is gelegen ten oosten van Thorn en ten noordwesten van Maasbracht. In 2023 telde Wessem 2.035 inwoners.[1] Zoals vele kleinere plaatsen in Limburg heeft Wessem een landelijk karakter en een rijke historie. Het was tot 1991 een zelfstandige gemeente.
Dankzij de ligging aan de grindplassen aan de Maas is Wessem betrekkelijk welvarend. Er wordt op grote schaal grind en zand geëxploiteerd, het is een van de grootste grindproducenten van Nederland.
Plattegronden
181141576_1601337_de_ze_begane_grond_tu_first_design_20260114_b95202.jpg
181141576_1601337_de_ze_begane_grond_first_design_20260114_b7f7dd.jpg
181141576_1601337_de_ze_eerste_verdiepi_first_design_20260114_df7b96.jpg
181141576_1601337_de_ze_zolder_first_design_20260114_c693f6.jpg
181141576_1601337_de_ze_berging_first_design_20260114_7a210d.jpg
181141576_1601337_de_ze_kas_first_design_20260114_36274b.jpg