Beschrijving

Mooie 6-persoonsvilla met prachtige inrichting gelegen in Zuid-Limburg!

Landal Kasteeldomein De Cauberg:
Dit park is de perfecte uitvalsbasis voor mooie fiets-, wandel- en autotochten in de omgeving. Het ligt vlakbij toeristische attracties, zoals de Cauberg en de Mergelgrotten. Ontdek de vele gezellige dorpen en steden, geniet van het glooiende en verrassende landschap! Het recreatiepark is op loopafstand van Valkenburg gelegen. Maastricht, Aken en Luik zijn ook de moeite waard voor een uitje! Op ca. een kilometer van het park is een overdekt zwembad te vinden. Naast het recreatiepark is een sauna & wellness resort voor de welverdiende ontspanning. Op Landal Kasteeldomein De Cauberg treft u verschillende faciliteiten zoals een restaurant, een minishop, een jeu-de-boules baan en speeltuinen.

Deze karaktervolle 6-persoonsvilla staat op een perceel van 393 m² eigen grond en biedt een ideale combinatie van comfort en luxe. De gezellige zit- en eethoek, met sfeervolle houtkachel, is perfect voor ontspannen avonden. Vanuit de lichte woonkamer stapt u zo het gemeubileerde terras op, waar u heerlijk kunt genieten van de buitenlucht.
De open keuken is uitgerust met moderne apparatuur, waaronder een vaatwasser en combimagnetron, zodat u van alle gemakken bent voorzien.
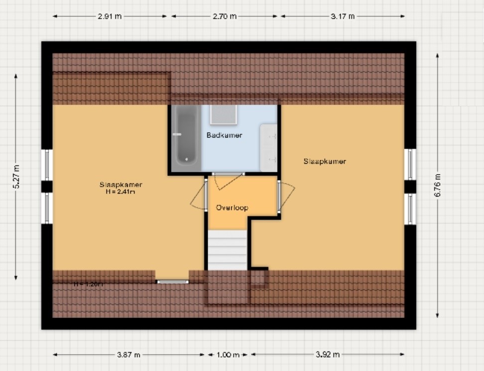
Op de begane grond bevindt zich een ruime slaapkamer met een 2-persoons boxspringbed , aangrenzend vindt u de en-suite badkamer, compleet met douchecabine en wastafel. Het toilet is apart gelegen voor extra gemak.

Op de eerste verdieping zijn twee comfortabele slaapkamers, elk met twee 1-persoons boxspringbedden. De luxe badkamer op deze verdieping beschikt over een bubbelbad, wastafel en een tweede toilet.
De villa is voorzien van een praktische inpandige berging voor extra opbergruimte.

Bijzonderheden

- Perceel eigen grond van 393 m2;
- De woning beschikt over 2 parkeerplaatsen op eigen terrein;
- Er zijn plannen om binnen nu en 2 jaar de badkamers in de woning te vervangen. Dit valt buiten de exploitatie, eigenaren dienen dit zelf te bekostigen.

- Ligging:
Gelegen op de top van de befaamde Cauberg en te midden van vele attracties, bezienswaardigheden en de bekende mergelgrotten ligt Landal Kasteeldomein de Cauberg. De luxe villa’s en appartementen op het park liggen in een rustige omgeving, niet ver van het centrum van Valkenburg en grenzend aan kuuroord Thermae 2OOO en Holland Casino.

- Ter bescherming van de belangen van zowel koper als verkoper, wordt uitdrukkelijk gesteld dat een koopovereenkomst met betrekking tot deze onroerende zaak eerst dan tot stand komt nadat koper en verkoper de koopovereenkomst hebben getekend (“schriftelijkheidsvereiste”);

- De termijn die wordt opgenomen voor eventuele (overeengekomen) ontbindende voorwaarden (bv. Financiering) is in de regel 4 tot 6 weken na het sluiten van de mondelinge wilsovereenkomst;

- De waarborgsom/bankgarantie is 10% van de koopsom. De koper dient deze 2 weken ná het vervallen van de ontbindende
voorwaarden bij de desbetreffende notaris te deponeren;

- Koper is te allen tijde gerechtigd voor eigen rekening een bouwkundige keuring te (laten) verrichten dan wel andere adviseurs te raadplegen teneinde een goed inzicht te verkrijgen over de staat van onderhoud.

Kenmerken