Beschrijving

Buitengewoon veel ruimte, vrijheid en comfort – deze vrijstaande woning biedt het allemaal!

Welkom in deze indrukwekkend ruime vrijstaande woning, waar wonen, werken en leven samenkomen op een perceel van maar liefst 713 m² eigen grond. Met een royale gebruikersoppervlakte van 275 m² en een bruto inhoud van 888 m³, is dit geen huis om in te passen – dit is een huis dat zich aanpast aan jouw leven. Ruimtelijk, licht, praktisch én boordevol mogelijkheden.

Een slimme en royale indeling

Zodra je binnenkomt, valt meteen op hoe goed over de indeling is nagedacht. De centrale entree geeft toegang tot meerdere vertrekken, waaronder een ruime woonkamer met grote raampartijen, een gezellige leefkeuken met gezellige ontbijthoek en een directe verbinding naar buiten via dubbele deuren – ideaal voor zomerse dagen. Grenzend aan de keuken ligt een eetkamer die volop ruimte biedt voor lange diners en familiebijeenkomsten.

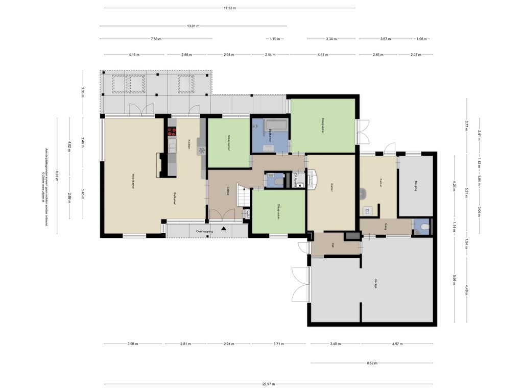
Indeling

Multifunctionele kamers op de begane grond

Op de begane grond bevinden zich meerdere (slaap)kamers, waarvan er twee direct bruikbaar zijn als thuiskantoor, hobbyruimte of praktijk aan huis. Een volwaardige badkamer op de begane grond maakt levensloopbestendig wonen hier direct mogelijk. De woning biedt volop privacy en afscheiding waar gewenst, maar blijft open en verbonden waar het telt.

Garage, berging én bijkeuken – alles onder één dak

Aan de achterzijde van het huis bevindt zich een ruime garage met plek voor meerdere voertuigen of als werkplaats. Daarnaast zijn er een bijkeuken, een aparte berging én een overdekte doorgang naar de tuin. Alles wat je nodig hebt om georganiseerd, comfortabel en zorgeloos te wonen.

Binnen en buiten perfect in balans

De woning is gelegen op een royaal perceel van 713 m², waardoor je rondom de woning volop tuin hebt. Hier is ruimte voor meerdere terrassen, een speelplek, een moestuin of zelfs een zwembad. De tuin is bereikbaar vanuit verschillende vertrekken in huis en biedt veel privacy. De oprit biedt ruimte voor meerdere auto’s.

Wonen met mogelijkheden

Of je nu een groot gezin hebt, aan huis wilt werken, gelijkvloers wilt wonen of juist ruimte zoekt voor logees, hobby’s of mantelzorg – deze woning kan het allemaal. De 275 m² aan ruimte is logisch ingedeeld en flexibel inzetbaar. Dit is een woning waar je zonder verbouwen al ontzettend veel kanten mee op kunt.

Kortom: een huis dat méér biedt. Meer ruimte, meer comfort, meer mogelijkheden. Ontdek het zelf tijdens een bezichtiging – en ervaar hoe fijn vrijstaand wonen kan zijn.

Eerste verdieping

Afgewerkte zolder kamers met voldoende stahoogte dienst doende als bergruimten.

Bijzonderheden

Omgeving
Ohé en Laak, een geliefd Maasdorp in Midden-Limburg, dat bekendstaat om zijn rust, ruimte en prachtige natuurrijke omgeving. Hier woon je letterlijk op een steenworp van de Maas, met directe toegang tot fiets- en wandelroutes door het groen, langs water en historische kasteeltjes.

Ohé en Laak ademt een dorps karakter, met een warme gemeenschap, gezellige evenementen en een veilige leefomgeving. Toch woon je hier verrassend centraal: Roermond, Echt en Maaseik liggen op korte rijafstand en de A2 richting Eindhoven of Maastricht is snel te bereiken. Voor wie houdt van rust, natuur en ruimte, maar niet wil inleveren op bereikbaarheid en voorzieningen, is dit de perfecte plek.

- Alle maten betreffen circa maten
- Ter bescherming van de belangen van zowel koper als verkoper, wordt uitdrukkelijk gesteld dat een koopovereenkomstmet betrekking tot dezeonroerende zaak eerst dan tot stand komt nadat koper en verkoper de koopovereenkomst hebben getekend (“schriftelijkheidsvereiste”)
- De termijn die wordt opgenomen voor eventuele (overeengekomen) ontbindende voorwaarden (bv. Financiering) is in de regel 4 tot 6 weken na het sluiten van de mondelinge wilsovereenkomst
- De waarborgsom/bankgarantie is 10% van de koopsom. De koper dient deze 2 weken ná het vervallen van de ontbindende voorwaarden bij de desbetreffende notaris te deponeren
- Koper is te allen tijde gerechtigd voor eigen rekening een bouwkundige keuring te (laten) verrichten dan wel andere adviseurs te raadplegen teneinde een goed inzicht te verkrijgen over de staat van onderhoud.

Kenmerken