Beschrijving
Ruimte, uitzicht én comfort aan de haven
Welkom aan de Tipstraat 51 in het gezellige Maasbracht!
Deze goed onderhouden woning uit 1979 combineert rust, ruimte en een prachtig uitzicht op de haven. Met een open keuken, meerdere leefhoeken en een mooie voor- en achtertuin is dit een ideale gezinswoning met de mogelijkheid tot kantoor aan huis of aanpassing naar gelijkvloers wonen.
INDELING:
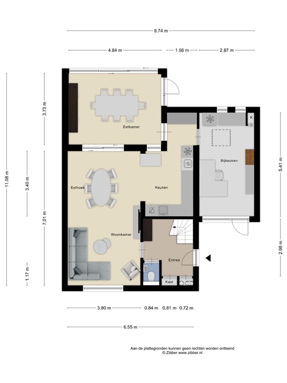
Begane grond
Bij binnenkomst betreed je de entree met toegang tot de meterkast, het toilet en een handige berging. Vanuit hier leidt de trap naar de eerste verdieping.
De ruime woonkamer is heerlijk licht en biedt een comfortabele zithoek en een gezellige eethoek. Aansluitend vind je de open keuken, voorzien van voldoende werk- en opbergruimte. Direct naast de keuken ligt een royale bijkeuken, ideaal voor extra opslag en wasruimte of te gebruiken als werkruimte. Dit is ook de plek die je zou kunnen omvormen tot een slaapkamer - badkamer, waardoor gelijkvloers wonen voor de toekomst mogelijk is.
Aangrenzend aan de keuken en woonkamer ligt de aparte eet/tuinkamer, met een prachtig uitzicht op de tuin – een heerlijke plek voor lange diners of koffiemomenten met zicht op de onderhouds arme groene tuin.
Eerste verdieping
Op de eerste verdieping bevinden zich drie slaapkamers en de badkamer. Twee kamers beschikken over een ingebouwde kast, ideaal voor extra opbergruimte. De badkamer is praktisch ingericht met een wastafel, toilet en douche.
Zolders
Zowel boven de bijkeuken als boven het hoofdgedeelte van het huis bevindt zich een ruime zolder, bereikbaar via een vlizotrap. Perfect als bergzolder, hobbyruimte.
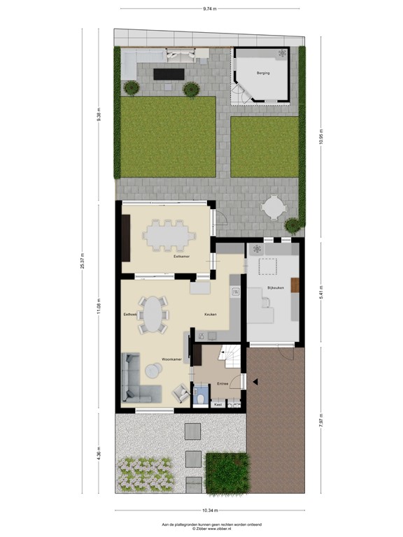
Buitenruimte
De woning beschikt over een verzorgde voortuin en een fijne, groene achtertuin met volop privacy. In de hoek van de tuin bevindt zich een extra berging voor fietsen, tuingereedschap of andere spullen. En als kers op de taart: je kijkt uit vanuit de woonkamer over de haven – een uitzicht dat nooit verveelt.
Kenmerken op een rij:
Bouwjaar: 1979
Woonkamer met eethoek
Open keuken en aparte eetkamer met tuinzicht
Ruime bijkeuken
3 slaapkamers, waarvan twee met ingebouwde kast
Badkamer met douche, toilet en wastafel
Twee ruime zolders, beide bereikbaar via vlizotrap
Voor- en achtertuin met extra berging
Prachtig uitzicht op de haven
Gelegen in Maasbracht, op fietsafstand van centrum Maasbracht
Wil jij wonen op een unieke locatie met uitzicht op het water én volop ruimte in en om het huis? Maak dan snel een afspraak voor een bezichtiging. Tipstraat 51 wacht op jou!
Bijzonderheden
- Op loopafstand tot alle centrum voorzieningen;
- Alle maten betreffen circa maten
- Ter bescherming van de belangen van zowel koper als verkoper, wordt uitdrukkelijk gesteld dat een koopovereenkomstmet betrekking tot dezeonroerende zaak eerst dan tot stand komt nadat koper en verkoper de koopovereenkomst hebben getekend (“schriftelijkheidsvereiste”)
- De termijn die wordt opgenomen voor eventuele (overeengekomen) ontbindende voorwaarden (bv. Financiering) is in de regel 4 tot 6 weken na het sluiten van de mondelinge wilsovereenkomst
- De waarborgsom/bankgarantie is 10% van de koopsom. De koper dient deze 2 weken ná het vervallen van de ontbindende voorwaarden bij de desbetreffende notaris te deponeren
- Koper is te allen tijde gerechtigd voor eigen rekening een bouwkundige keuring te (laten) verrichten dan wel andere adviseurs te raadplegen teneinde een goed inzicht te verkrijgen over de staat van onderhoud
Omgeving:
Maasbracht is de grootste in de kern van de gemeente Maasgouw en heeft ruim 7000 inwoners. Maasbracht is zeer goed bereikbaar, Het is gelegen aan de A2 en de A73. Daarnaast is Maasbracht vooral bekend vanwege de scheepvaart, door de goede bereikbaarheid via het water beschikt Maasbracht over een grote binnenhaven. Maasbracht beschikt over een uitgebreide voorzieningen op het gebied van zorg, winkels, ontspanning en cultuur. Te denken aan diverse basisscholen, bibliotheek, sporthal, buitenzwembad, huisartsen, tandartsen, fysiotherapeuten, twee supermarkten, bakkers, slager, kledingwinkels, schoenwinkels, drogisterijen enzovoort. Bekende winkelketens als Hema, Bruna, Kruidvat zijn vertegenwoordigd naast veel plaatselijke ondernemers.
Plattegronden
178091377_1586421_tipst_begane_grond_first_design_20251016_4dcd55.jpg
178091377_1586421_tipst_eerste_verdiepi_first_design_20251016_1885df.jpg
178091377_1586421_tipst_tweede_verdiepi_first_design_20251016_cedfdc.jpg
178091377_1586421_tipst_berging_first_design_20251016_ce4f44.jpg
178091377_1586421_tipst_begane_grond_tu_first_design_20251016_fb29b1.jpg