Beschrijving
Vrijstaande woning met garage, multifunctionele ruimte en royale tuin – Stationsweg 23, Maasbracht
Aan de Stationsweg in Maasbracht staat deze vrijstaande hoekwoning op een ruim perceel van maar liefst 433 m². De woning beschikt over een praktische indeling, een grote garage met smeerput, drie ruime slaapkamers en een multifunctionele ruimte die tal van mogelijkheden biedt voor wonen, werken of hobby’s. Dankzij de vrije ligging, de omsloten achtertuin en de aanwezige voorzieningen vormt dit een ideale woning voor gezinnen of voor wie wonen en werken wil combineren.
Begane grond
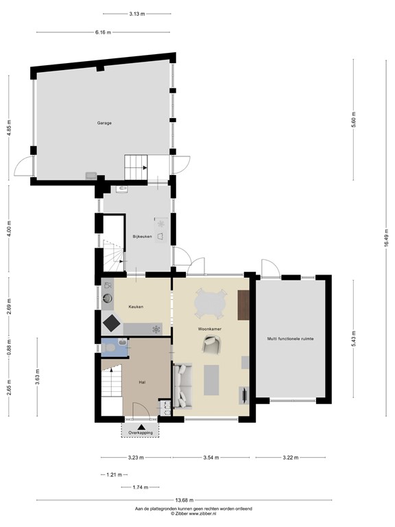
Via de ruime entree betreedt u de hal, waar zich de hardhouten trap naar de verdieping en de toegang tot het toilet bevindt. Vanuit de hal komt u in de sfeervolle woonkamer, voorzien van een houtparketvloer. Een karakteristieke gemetselde boog vormt de verbinding tussen de woonkamer en de keuken en geeft de ruimte een warme uitstraling.
De keuken biedt toegang tot de bijkeuken, waar zich de witgoedaansluitingen bevinden. Vanuit de bijkeuken bereikt u tevens de betegelde kelder, ideaal voor provisie en extra opslag.
Via enkele traptreden is vanuit de bijkeuken de grote garage bereikbaar. Deze garage is uitgerust met een hoge elektrische garagedeur (2016) en beschikt over een smeerput, wat het een perfecte ruimte maakt voor hobbyisten of autoliefhebbers.
De omsloten achtertuin is eveneens via de bijkeuken toegankelijk en biedt volop privacy.
Multifunctionele ruimte
Via de achtertuin heeft u toegang tot een extra multifunctionele ruimte van circa 17,5 m².
Deze ruimte biedt diverse mogelijkheden, zoals bv een uitbreiding van de woonkamer door middel van een doorbraak.
Maar kan ook gebruikt worden als kantoor, salon/praktijkruimte aan huis, of als hobbyruimte en atelier.
Door een eventuele eigen toegang aan de voorzijde te creëren is deze ruimte ook zeer geschikt voor werken aan huis, waardoor werk en privé toch gescheiden kan blijven
Eerste verdieping
Op de eerste verdieping bevinden zich:
* een overloop,
* drie ruime slaapkamers,
* een badkamer voorzien van een toilet, wastafel en bad.
De badkamer is functioneel maar kan naar wens worden gemoderniseerd.
Zolder
Via een vlizotrap is de zolder bereikbaar, die dienst doet als praktische extra bergruimte.
Overige kenmerken
De woning beschikt verder over:
* rolluiken
* aluminium kozijnen
* een HR Nefit cv-ketel uit 2023
Kenmerken
* Vrijstaande hoekwoning
* Perceeloppervlakte: 433 m²
* 3 slaapkamers
* Grote garage met elektrische poort en smeerput
* Multifunctionele ruimte van ca. 17,5 m²
* Omsloten achtertuin
* CV-ketel Nefit (2023)
* Dak van isolatie en nieuwe pannen voorzien (2002)
Kortom: een vrijstaande woning met veel ruimte, praktische voorzieningen en diverse gebruiksmogelijkheden, gelegen op een ruim perceel in Maasbracht.
Bijzonderheden
Omgeving:
Maasbracht is de grootste in de kern van de gemeente Maasgouw en heeft ruim 7000 inwoners. Maasbracht is zeer goed bereikbaar, Het is gelegen aan de A2 en de A73 met de luchthaven van Maastricht op 29 km, Eindhoven 62 km en Düsseldorf 79 km. Daarnaast is Maasbracht vooral bekend vanwege de scheepvaart, door de goede bereikbaarheid via het water beschikt Maasbracht over een grote binnenhaven. Maasbracht beschikt over uitgebreide voorzieningen op het gebied van zorg, winkels, ontspanning en cultuur. Te denken aan diverse basisscholen, bibliotheek, sporthal, buitenzwembad, huisartsen, tandartsen, fysiotherapeuten, twee supermarkten, bakkers, slager, kledingwinkels, schoenwinkels, drogisterijen enzovoort. Bekende winkelketens als Hema, Bruna, Kruidvat zijn vertegenwoordigd naast veel plaatselijke ondernemers. Gelegen nabij de maasplassen, ideaal voor de watersport liefhebber.
Overige
- Ter bescherming van de belangen van zowel koper als verkoper, wordt uitdrukkelijk gesteld dat een koopovereenkomst met betrekking tot deze onroerende zaak
eerst dan tot stand komt nadat koper en verkoper de koopovereenkomst hebben getekend (“schriftelijkheidsvereiste”);
- De termijn die wordt opgenomen voor eventuele (overeengekomen) ontbindende voorwaarden (bv. financiering) is in de regel 4 tot 6 weken na het sluiten van de
mondelinge wilsovereenkomst;
- De waarborgsom/bankgarantie is 10% van de koopsom. De koper dient deze 2 weken ná het vervallen van de ontbindende voorwaarden bij de desbetreffende
notaris te deponeren;
- Koper is te allen tijde gerechtigd voor eigen rekening een bouwkundige keuring te (laten) verrichten dan wel andere adviseurs te raadplegen teneinde een goed
inzicht te verkrijgen over de staat van onderhoud.
Belangrijke informatie voor de koper:
Bovenstaande informatie is met zorg samengesteld. Er kunnen echter geen rechten aan worden ontleend, verkopers noch verkopend makelaar kunnen aansprakelijk worden gehouden voor eventuele onjuistheden. Indien bepaalde informatie voor u van wezenlijk belang is, dan adviseren wij u deze op juistheid te (laten) controleren. Alle opgegeven maten en oppervlakken zijn indicatief.
Plattegronden
184242769_1641616_stati_begane_grond_first_design_20260415_ea5144.jpg
184242769_1641616_stati_eerste_verdiepi_first_design_20260415_981c0c.jpg
184242769_1641616_stati_zolder_first_design_20260409_f63ef8.jpg
184242769_1641616_stati_kelder_first_design_20260409_7640f1.jpg
184242769_1641616_stati_begane_grond_tu_first_design_20260409_ea9db4.jpg