Beschrijving

Vrijstaand wonen met ruimte, rust én mogelijkheden – Spitsstraat 8, Maasbracht

Welkom aan de Spitsstraat 8 in Maasbracht: een verrassend royale vrijstaande woning waar ruimte, comfort en potentie samenkomen. Met maar liefst ca. 197 m² woonoppervlakte en een perceel van 400 m² biedt deze woning alles voor wie nét dat beetje extra zoekt. 

Gelegen in een rustige, kindvriendelijke woonwijk en toch op loopafstand van het centrum, combineert deze woning het beste van twee werelden: privacy én bereikbaarheid.

Indeling

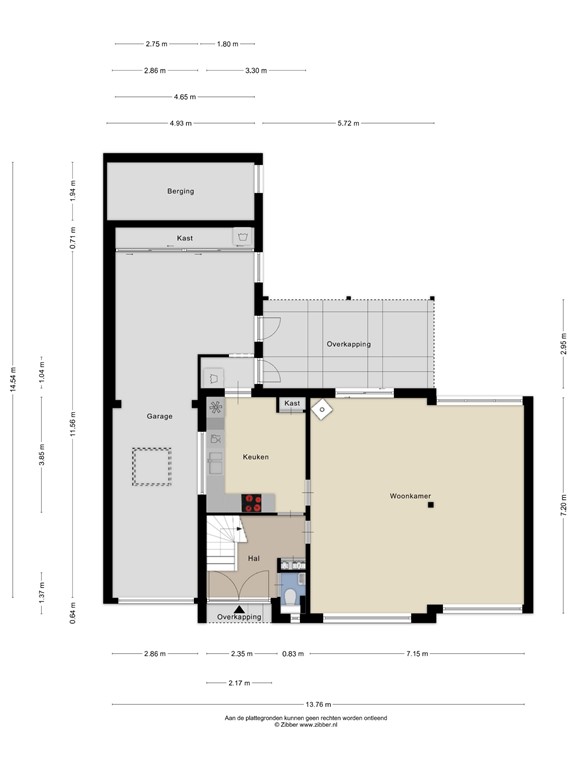
Begane grond
Via de entree kom je in de hal met toegang tot de diverse leefruimtes. De ruime woonkamer biedt volop lichtinval en vormt het hart van het huis – een fijne plek om te ontspannen of gasten te ontvangen. Aansluitend bevindt zich de keuken, met voldoende ruimte voor een moderne opstelling en directe verbinding met de garage en tuin.
Verder vind je op de begane grond praktische ruimtes zoals een toilet, ruime garage waar perfect twee wagens binnen kunnen worden geparkeerd en een overdekt terras welke door fraaie geautomatiseerde screens diens doet als serre.
Buitenom, is er een handige stenen berging aanwezig.

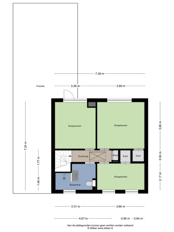
Eerste verdieping

Eerste verdieping
Op de verdieping bevinden zich drie ruime slaapvertrekken van goed formaat, ideaal voor gezinnen of voor wie extra werk- of hobbyruimte zoekt. De badkamer is recent geplaatst en voorzien van o.a. een ruime inloop douche.

Tweede verdieping

Zolder bereikbaar middels vlizo trap hier volop extra bergruimte.

Bijzonderheden

Omgeving:
Maasbracht is de grootste in de kern van de gemeente Maasgouw en heeft ruim 7000 inwoners. Maasbracht is zeer goed bereikbaar, Het is gelegen aan de A2 en de A73 met de luchthaven van Maastricht op 29 km, Eindhoven 62 km en Düsseldorf 79 km. Daarnaast is Maasbracht vooral bekend vanwege de scheepvaart, door de goede bereikbaarheid via het water beschikt Maasbracht over een grote binnenhaven. Maasbracht beschikt over uitgebreide voorzieningen op het gebied van zorg, winkels, ontspanning en cultuur. Te denken aan diverse basisscholen, bibliotheek, sporthal, buitenzwembad, huisartsen, tandartsen, fysiotherapeuten, twee supermarkten, bakkers, slager, kledingwinkels, schoenwinkels, drogisterijen enzovoort. Bekende winkelketens als Hema, Bruna, Kruidvat zijn vertegenwoordigd naast veel plaatselijke ondernemers. Gelegen nabij de maasplassen, ideaal voor de watersport liefhebber.

Overige
- Ter bescherming van de belangen van zowel koper als verkoper, wordt uitdrukkelijk gesteld dat een koopovereenkomst met betrekking tot deze onroerende zaak
eerst dan tot stand komt nadat koper en verkoper de koopovereenkomst hebben getekend (“schriftelijkheidsvereiste”);
- De termijn die wordt opgenomen voor eventuele (overeengekomen) ontbindende voorwaarden (bv. financiering) is in de regel 4 tot 6 weken na het sluiten van de
mondelinge wilsovereenkomst;
- De waarborgsom/bankgarantie is 10% van de koopsom. De koper dient deze 2 weken ná het vervallen van de ontbindende voorwaarden bij de desbetreffende
notaris te deponeren;
- Koper is te allen tijde gerechtigd voor eigen rekening een bouwkundige keuring te (laten) verrichten dan wel andere adviseurs te raadplegen teneinde een goed
inzicht te verkrijgen over de staat van onderhoud.

Belangrijke informatie voor de koper:
Bovenstaande informatie is met zorg samengesteld. Er kunnen echter geen rechten aan worden ontleend, verkopers noch verkopend makelaar kunnen aansprakelijk worden gehouden voor eventuele onjuistheden. Indien bepaalde informatie voor u van wezenlijk belang is, dan adviseren wij u deze op juistheid te (laten) controleren. Alle opgegeven maten en oppervlakken zijn indicatief.

Kenmerken