Beschrijving

Voor de levensgenieter met de voorkeur voor gelijkvloers wonen.

De tijd is aangebroken om comfortabel, luxe en gelijkvloers te gaan wonen! Deur dicht en gaan. Thuiskomen en genieten van een overweldigende leefruimte voorzien van alle gemakken.

Voorbije jaren is deze woning altijd keurig onderhouden, het resultaat, is een heerlijke lichte leefruimte met voldoende buitenruimte. De perfecte plattegrond en dito afwerking om riant en onderhoudsvriendelijk te wonen!

Gelegen op rustige woonplek. Wilt u deze woning van binnen zien, gelieve contact op te nemen met ons kantoor.

Indeling

Begane grond:

De woning beschikt o.a. over een entree - zonnige woonkamer met half open inbouwkeuken - bijkeuken met alle witgoed aansluiting - ruime slaapkamer - betegelde badkamer.

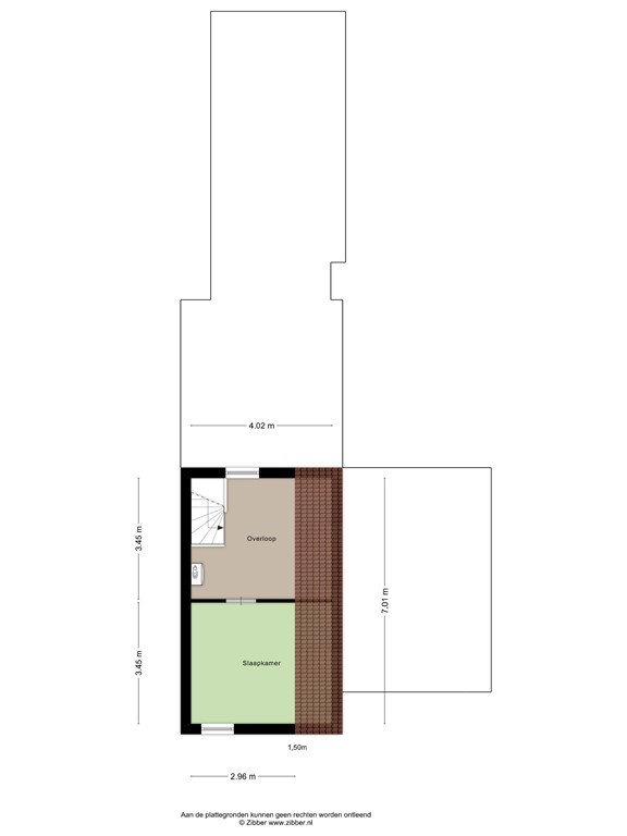
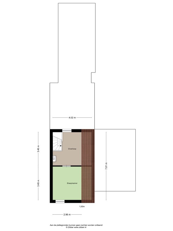
Eerste verdieping

Boven treft u een royale overloop, welke naast de C.V.-opstelling voldoende potentieel biedt voor het creëren van een volwaardige werk- of studiekamer. Aansluitend bevindt zich het tweede slaapvertrek.

Tuin

Buitenom vindt u een heerlijke onderhoudsvriendelijke tuin met ruime buitenberging.

Bijzonderheden

- De woning is centraal gelegen in Maasbracht. Dit is de grootste kern van de gemeente Maasgouw en heeft ruim 7000 inwoners. Maasbracht is zeer goed bereikbaar, het is gelegen direct aan de op- en afritten van de A2 en de A73. Daarnaast is Maasbracht vooral bekend vanwege de scheepvaart, door de goede bereikbaarheid via het water beschikt Maasbracht over de grootste binnenvaarthaven van Nederland.
Maasbracht beschikt over uitgebreide voorzieningen op het gebied van zorg, winkels, ontspanning en cultuur. Te denken van aan twee basisscholen, bibliotheek, sporthal, buitenzwembad, huisartsen, tandartsen, fysiotherapeuten, twee supermarkten, bakker, slager, kledingwinkels, schoenwinkels, drogisterijen enzovoort. Bekende winkelketens als Hema, Bruna, Kruidvat zijn vertegenwoordigd naast veel plaatselijke ondernemers.

- De notariële akte zal worden verleden via de projectnotaris, zoals voorgeschreven door verkoper.
- Ter bescherming van de belangen van zowel koper als verkoper, wordt uitdrukkelijk gesteld dat een koopovereenkomst met betrekking tot deze onroerende zaak eerst dan tot stand komt nadat koper en verkoper de koopovereenkomst hebben getekend (“schriftelijkheidsvereiste”);
- De termijn die wordt opgenomen voor eventuele (overeengekomen) ontbindende voorwaarden (bv. Financiering) is in de regel 4 tot 6 weken na het sluiten van de mondelinge wilsovereenkomst;
- De waarborgsom/bankgarantie is 10% van de koopsom. De koper dient deze 2 weken ná het vervallen van de ontbindende voorwaarden bij de desbetreffende notaris te deponeren;
- Koper is te allen tijde gerechtigd voor eigen rekening een bouwkundige keuring te (laten) verrichten dan wel andere adviseurs te raadplegen teneinde een goed inzicht te verkrijgen over de staat van onderhoud.

Kenmerken