Beschrijving
Alles tip top in orde:
Mooie HALFVRIJSTAAND geschakelde woning met ruime BERGING en erker.
Kort geleden gerenoveerd, zo werden er 10 zonnepanelen, vloerverwarming, nefit CV installatie, nieuwe keuken en badkamer geïnstalleerd.
De woning heeft 3 slaapkamers en is gelegen aan leuk speelplein.
Maak vandaag nog een afspraak graag laten wij u deze woning van binnen zien !
Indeling
Parterre:
Entree, gastentoilet (maart 2015), meter- en garderobekast - doorzon woonkamer met leuk zicht middels erker aan de voorzijde - gesloten luxe inbouw keuken (november 2017) - ruime berging voorzien van alle witgoedaansluitingen - fraaie tuin met tuinhuis (april 2014).
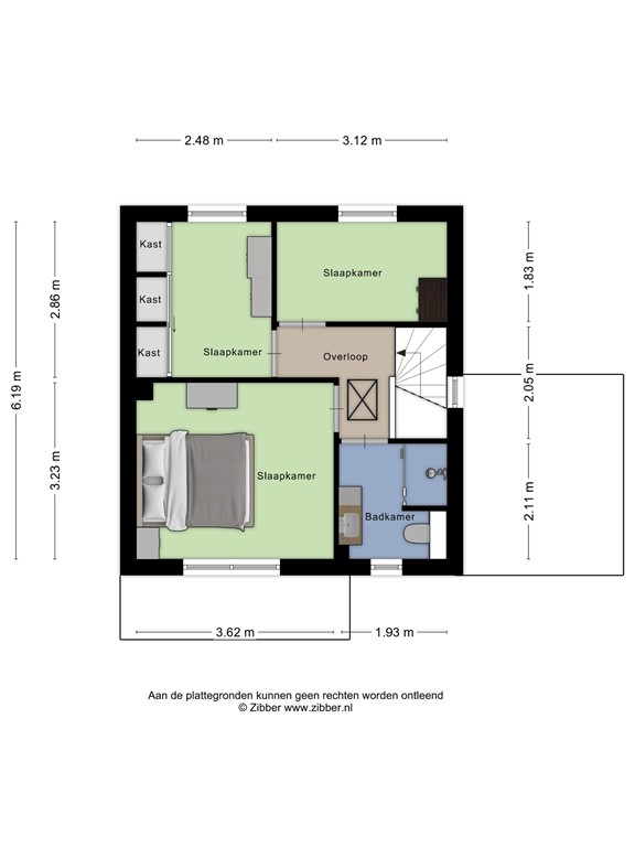
1e verdiep:
Overloop - badkamer (maart 2015) met douche , tweede toilet en wastafel in meubel - 3 slaapkamers resp. 12, 7 en 6 m2.
2de verdiep:
Berg zolder welke bereikbaar is middels vlizotrap
Bijzonderheden
- in oktober 2018 werd de begane grond (keuken, woonkamer en entree) voorzien van vloerverwarming en fraaie nieuwe vloertegels;
- Praktisch nieuwe installatie --> zonnepanelen (10 stks) --> airco met twee binnen- en buitenunit's --> Nefit cv eigendom --> platdak op bijkeuken/ berging voorzien van isolatie;
- rondom voorzien van deels nieuwe ramen met inbouw en opbouw rolluiken;
- fraai tuinhuis met overdekt terras is in oktober 2013 geplaatst;
- inbouwkeuken is voorzien van kookplaat, vaatwasser, oven en inbouw koelkast;
- op loopafstand tot alle centrum voorzieningen;
- Alle maten betreffen circa maten.
- Ter bescherming van de belangen van zowel koper als verkoper, wordt uitdrukkelijk gesteld dat een koopovereenkomstmet betrekking tot deze
onroerende zaak eerst dan tot stand komt nadat koper en verkoper de koopovereenkomst hebben getekend (“schriftelijkheidsvereiste”);
- De termijn die wordt opgenomen voor eventuele (overeengekomen) ontbindende voorwaarden (bv. Financiering) is in de regel 4 tot 6 weken na het sluiten van de mondelinge wilsovereenkomst.
- De waarborgsom/bankgarantie is 10% van de koopsom. De koper dient deze 2 weken ná het vervallen van de ontbindende voorwaarden bij de desbetreffende notaris te deponeren.
- Koper is te allen tijde gerechtigd voor eigen rekening een bouwkundige keuring te (laten) verrichten dan wel andere adviseurs te raadplegen teneinde een goed inzicht te verkrijgen over de staat van onderhoud.
Omgeving:
Maasbracht is de grootste in de kern van de gemeente Maasgouw en heeft ruim 7000 inwoners. Maasbracht is zeer goed bereikbaar, Het is gelegen aan de A2 en de A73. Daarnaast is Maasbracht vooral bekend vanwege de scheepvaart, door de goede bereikbaarheid via het water beschikt Maasbracht over een grote binnenhaven. Maasbracht beschikt over een uitgebreide voorzieningen op het gebied van zorg, winkels, ontspanning en cultuur. Te denken aan diverse basisscholen, bibliotheek, sporthal, buitenzwembad, huisartsen, tandartsen, fysiotherapeuten, twee supermarkten, bakkers, slager, kledingwinkels, schoenwinkels, drogisterijen enzovoort. Bekende winkelketens als Hema, Bruna, Kruidvat zijn vertegenwoordigd naast veel plaatselijke ondernemers.
Plattegronden
178957747_1590758_heive_begane_grond_first_design_20251106_e36c67.jpg
178957747_1590758_heive_eerste_verdiepi_first_design_20251106_cd2511.jpg
178957747_1590758_heive_berging_first_design_20251106_a9005a.jpg
178957747_1590758_heive_zolder_first_design_20251106_bc2afe.jpg
178957747_1590758_heive_begane_grond_first_design_20251106_df9b51.jpg