Beschrijving

A room with a view..... Eén van de mooiste op appartementengebied, nu te koop!

Bent u zoekende naar een levensloopbestendige woning, een niet standaard appartement, gewoon een keer iets anders, maar hecht u ook veel waarde aan gemak en comfort, plus het feit dat het appartement zeer geschikt is voor minder validen! 
Dan presenteren wij u hierbij uw nieuwe onderkomen.   

Wij denken dat dit voor een appartement de mooiste plek van Maasbracht is, gelet het zicht op de haven. Vanaf het ruime balkon heeft u fraai uitzicht over de binnenhaven en havenboulvard.  

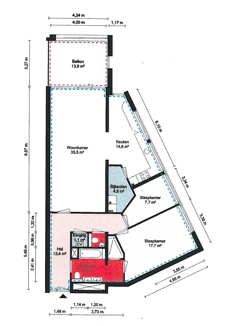
Dit DRIE-KAMERAPPARTEMENT met GARAGE en LIFT is gesitueerd op de tweede woonlaag en beschikt over een royale woonkamer met keukenaccommodatie. Vanuit deze ruimte is het terras (met havenzicht) te bereiken. Verder is het appartement voorzien van twee goed bemeten slaapkamers en een ruime ensuite badkamer voorzien van douche, ligbad en dubble wastafelmeubel en extra toilet. In de woning ligt een mooie pvc-parketvloer, waarbij alle dorpels zijn weggewerkt.  
Hierdoor is deze woning geschikt voor bewoning in alle levensfasen, dus ook voor mensen met een lichamelijke beperking.

Een heerlijke combinatie van wegdromen bij de aanblik van de bedrijvige binnenhaven of heerlijk uitwaaien op de Havenboulevard met zijn gezellige eetgelegenheden en terrasjes.  

Wat het geheel compleet maakt, is een EIGEN PARKEERPLAATS en een aparte praktische BERGING, bereikbaar via de ruime lift . 

Van dit appartement gaat u elke dag genieten!

Indeling

Entree - bellentablau - lift en trappenhuis

Eerste verdieping

Centrale hal - inkom/ hal appartement - woonkamer met halfopen keuken en berging met witgoed aansluiting - twee slaapkamers - cv installatie ruimte - toiletruimte en badkamer - terras (ca 14,9 m2).

Bijzonderheden

- Parkeergarage en aangrenzende berging (ca 10m2) in souterrain aanwezig;
- Servicekosten VVE bedragen ca. €253,46 pmnd 

- De woning is centraal gelegen in Maasbracht. Dit is de grootste kern van de gemeente Maasgouw en heeft ruim 7000 inwoners. Maasbracht is zeer goed bereikbaar, het is gelegen direct aan de op- en afritten van de A2 en de A73. Daarnaast is Maasbracht vooral bekend vanwege de scheepvaart, door de goede bereikbaarheid via het water beschikt Maasbracht over de grootste binnenvaarthaven van Nederland. 
Maasbracht beschikt over uitgebreide voorzieningen op het gebied van zorg, winkels, ontspanning en cultuur. Te denken van aan twee basisscholen, bibliotheek, sporthal, buitenzwembad, huisartsen, tandartsen, fysiotherapeuten, twee supermarkten, bakker, slager, kledingwinkels, schoenwinkels, drogisterijen enzovoort. Bekende winkelketens als Hema, Bruna, Kruidvat zijn vertegenwoordigd naast veel plaatselijke ondernemers. 

- Ter bescherming van de belangen van zowel koper als verkoper, wordt uitdrukkelijk gesteld dat een koopovereenkomst met betrekking tot deze onroerende zaak eerst dan tot stand komt nadat koper en verkoper de koopovereenkomst hebben getekend (“schriftelijkheidsvereiste”);
- De termijn die wordt opgenomen voor eventuele (overeengekomen) ontbindende voorwaarden (bv. Financiering) is in de regel 4 tot 6 weken na het sluiten van de mondelinge wilsovereenkomst;
- De waarborgsom/bankgarantie is 10% van de koopsom. De koper dient deze 2 weken ná het vervallen van de ontbindende voorwaarden bij de desbetreffende notaris te deponeren;
- Koper is te allen tijde gerechtigd voor eigen rekening een bouwkundige keuring te (laten) verrichten dan wel andere adviseurs te raadplegen teneinde een goed inzicht te verkrijgen over de staat van onderhoud.
- Alle opgegeven afmetingen zijn indicatief en hieraan kunnen geen rechten worden verbonden.

Kenmerken