Beschrijving

Imposante villa met allure en architectonische klasse op toplocatie in Maasbracht
Op een van de mooiste locaties van Maasbracht ligt deze zeer solide en luxueus afgewerkte villa (bouwjaar 2017). Bij het ontwerp, onder de architectuur van Cees Metz, stonden de bewoners en de beleving van de omgeving centraal. Dit resulteert in een transparant en open karakter waarbij de ca 253 m² gebruiksoppervlakte is verdeeld is over fraaie, functionele vertrekken die vloeiend in elkaar overgaan.

Hoogwaardig comfort en techniek
De woning is gebouwd met oog voor detail en een uitzonderlijk hoog afwerkingsniveau. De villa is voorzien van 4 royale slaapvertrekken, een ruim souterrain en moderne sanitaire voorzieningen. Op technisch vlak is de woning zeer compleet met een ‘State of the Art’ klimaatbeheersing inclusief koelfunctie, een warmte-terugwininstallatie en automatische zonneblinden.

Een 'Room with a View'
De bovenverdieping biedt een ware weldaad aan ruimte. De masterbedroom van circa 36 m² is een absolute blikvanger: een ‘Room with a View’ met een groot raam dat uitkijkt over de aangrenzende landerijen. De suite beschikt over een eigen dressroom en staat in open verbinding met de luxueus uitgevoerde badkamer.

Tuinarchitectuur
De rondom gelegen tuin is onder architectuur van Michel Verhoeven aangelegd. De buitenruimte is perfect onderhouden en voorzien van een automatische sprinkler- en druppelinstallatie, waardoor u optimaal kunt genieten van de rust en de landelijke setting.

Ruimte en Allure
Direct bij binnenkomst ervaart u de enorme inhoud en de exclusieve uitstraling van dit object. De villa combineert een solide bouwstijl met een moderne, transparante woonsfeer. Een woning die in alle facetten uitzonderlijke klasse uitstraalt.

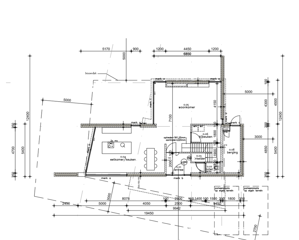
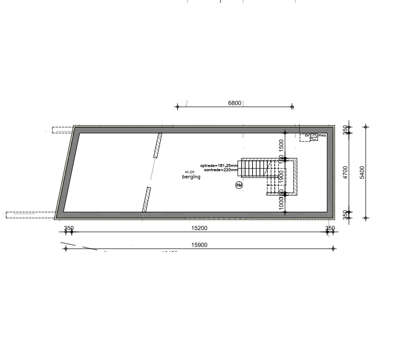
Indeling

Gegoten en geïsoleerde kelder thans ingericht als kantoor - speelkamer en provisie- en utiliteitsruimte (ca 65,1 m²). In gebruik als kantoor en 2e woonkamer 
 
Parterre:
Entree – dubbele openslaande glazen deuren naar woonkamer, eetkamer / keuken (ca 70 m²) -  bijkeuken met witgoedaansluiting.
Imposante trapopgang naar de eerste verdieping..

Eerste verdieping

Overloop – 4 slaapvertrekken resp. ca. 12.7 , 9.9 , 9.9 en 36,0 m².  
 
Tuin: 
Onder architectuur aangelegde tuin met keramisch tegelwerk, ruime terrassen, strak lijnenspel met fraaie vijverpartij. Naast de woning keurige opslagruimte voor al het tuingerei.

Bijzonderheden

Exclusief ontwerp: Een onder architectuur gebouwde villa met een unieke uitstraling en hoogwaardige afwerking.
Duurzaamheid & Energie: Zeer energiezuinige woning; energielabel A, uitgerust met een moderne luchtwarmtepomp (geschikt voor verwarmen én koelen) en 21 zonnepanelen die discreet op het platte dak zijn geplaatst.
Optimaal klimaatcomfort: Zowel de parterre als de eerste verdieping en het souterrain (met uitzondering van de utiliteitsruimte) beschikken over vloerverwarming en vloerkoeling voor een aangename temperatuur in elk seizoen.
Hoogwaardige isolatie: De gehele woning is voorzien van HR++ dubbele beglazing in kwalitatieve aluminium kozijnen.
Luxe keuken: Een exclusieve inbouwkeuken met optimaal comfort, waaronder een vaatwasser, wijn klimaatkast, Quooker, combi-oven/magnetron en een extra oven/stoomoven.  
Sfeer & Techniek: Voorzien van een sfeervolle gashaard die eenvoudig en automatisch via de smartphone te bedienen is.
Praktisch gemak: Inclusief een functionele bijkeuken met aansluitingen voor witgoed.
Veiligheid: De woning beschikt over een uitstekend beveiligingsniveau d.m.v. alarmsysteem.
Onderhoudsvriendelijke tuin: Een fraai aangelegde buitenruimte met een volledig automatisch bewateringssysteem voor zowel het kunstgras  gazon als de borders. 
Toplocatie: Gelegen op een werkelijk unieke locatie.
 
Omgeving:
Maasbracht is de grootste in de kern van de gemeente Maasgouw en heeft ruim 7000 inwoners. Maasbracht is zeer goed bereikbaar, Het is gelegen aan de A2 en de A73. Daarnaast is Maasbracht vooral bekend vanwege de scheepvaart, door de goede bereikbaarheid via het water beschikt Maasbracht over een grote binnenhaven. Maasbracht beschikt over een uitgebreide voorzieningen op het gebied van zorg, winkels, ontspanning en cultuur. Te denken aan diverse basisscholen, bibliotheek, sporthal, buitenzwembad, huisartsen, tandartsen, fysiotherapeuten, twee supermarkten, bakkers, slager, kledingwinkels, schoenwinkels, drogisterijen enzovoort. Bekende winkelketens als Hema, Bruna, Kruidvat zijn vertegenwoordigd naast veel plaatselijke ondernemers. Gelegen nabij de maasplassen, ideaal voor de watersport liefhebber.

Kenmerken