Beschrijving
Deze sfeervolle gezinswoning met royale leefruimte en tuin vind je aan de Mgr. Hanssenlaan 36 in Hoensbroek, gelegen in een rustige, kindvriendelijke buurt.
De woning, is gebouwd in 1959 en combineert karakteristieke elementen met verrassend veel ruimte en praktische indeling. Hier vind je alles wat je nodig hebt voor comfortabel wonen!
Indeling
Begane grond:
Stap binnen in de ruime hal met trapopgang, toilet en berging waarna je direct wordt verwelkomd in de royale L-vormige woonkamer. Deze leefruimte biedt volop mogelijkheden voor een gezellige zithoek én een aparte werk- of speelhoek.
Dankzij de grote ramen geniet je hier van veel natuurlijk licht.
De open keuken/eetkamer is verbonden met de woonkamer voor een extra ruimtelijke sfeer en vormt samen het hart van het huis – ideaal voor gezellige diners met familie en vrienden. De keuken is ruim opgezet en biedt voldoende plek voor een sfeervolle eethoek.
Vanuit de keuken heb je toegang tot de achtertuin, en de overkapping waar je kunt genieten van het buitenleven. De tuin beschikt over een praktische berging – perfect voor fietsen, gereedschap of extra opslag en een eigen achter toegang.
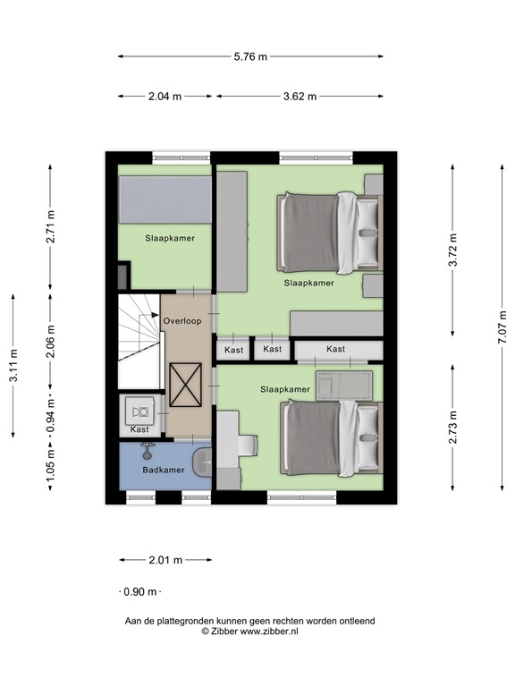
Eerste verdieping:
Op de eerste verdieping bevinden zich drie slaapkamers, een badkamer en extra ruimte met witgoed aansluiting. De kamers zijn functioneel in te richten en bieden genoeg ruimte voor een gezin, logeerkamer of thuiswerkplek. de kamers variëren qua grootte. Twee kamers hebben uitkijk op de tuin. En er bevind zich nog een slaapkamer aan de voorkant van het huis, met uitkijk op de straat.
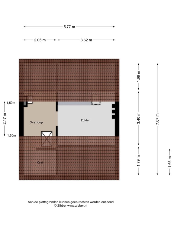
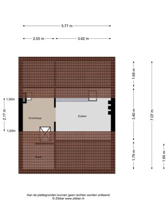
Zolder:
Via een flizotrap bereik je de ruime zolderverdieping. Deze ruimte is ideaal om in te richten als vierde slaapkamer of hobbyruimte. Daarnaast is er ook op zolder nog extra bergruimte aanwezig.
De tuin is gelegen naar het westen, er bevind zich een berging en overkapping. deze tuin heeft mogelijkheden van een grasmat tot moestuintjes.
Pluspunten op een rij:
• Bouwjaar 1959 – degelijk gebouwd met karakter
• Zeer ruime L-vormige woonkamer
• Open keuken met eetkamer: gezellig en praktisch
• 3 slaapkamers op de eerste verdieping
• Mogelijkheid tot vierde slaapkamer op zolder (nog te realiseren)
• Badkamer en meerdere bergruimtes
• Ruime tuin met berging
• Gelegen in een woonwijk in Hoensbroek
Ben jij op zoek naar een woning met veel potentie, een fijne tuin én genoeg ruimte voor het hele gezin?
Dan is Mgr. Hanssenlaan 36 zeker een bezichtiging waard!
Bijzonderheden
- Ter bescherming van de belangen van zowel koper als verkoper, wordt uitdrukkelijk gesteld dat een koopovereenkomst met betrekking tot deze onroerende zaak eerst dan tot stand komt nadat koper en verkoper de koopovereenkomst hebben getekend (“schriftelijkheidsvereiste”);
- De termijn die wordt opgenomen voor eventuele (overeengekomen) ontbindende voorwaarden (bv. Financiering) is in de regel 4 tot 6 weken na het sluiten van de mondelinge wilsovereenkomst;
- De waarborgsom/bankgarantie is 10% van de koopsom. De koper dient deze 2 weken ná het vervallen van de ontbindende voorwaarden bij de desbetreffende notaris te deponeren;
- Koper is te allen tijde gerechtigd voor eigen rekening een bouwkundige keuring te (laten) verrichten dan wel andere adviseurs te raadplegen teneinde een goed inzicht te verkrijgen over de staat van onderhoud.
- Alle opgegeven afmetingen zijn indicatief en hieraan kunnen geen rechten worden verbonden.
Plattegronden
177462676_1582385_mgr_begane_grond_first_design_20250930_439b5f.jpg
177462676_1582385_mgr_eerste_verdiepi_first_design_20250930_44e42e.jpg
177462676_1582385_mgr_zolder_first_design_20250930_401528.jpg
177462676_1582385_mgr_berging_first_design_20250930_efaae2.jpg
177462676_1582385_mgr_begane_grond_tu_first_design_20250930_01d92c.jpg