Beschrijving

Deze woning heeft een digitale brochure:
Iepenlaan18.nl

Uw Droomhuis: wonen op een unieke locatie
Iepenlaan 18 te Bunde
 
Bent u op zoek naar een tijdloze, gelijkvloerse woning met magnifiek uitzicht, gelegen op een rustige locatie? Dan is dit uw kans! 
Deze schitterende half vrijstaande woning met inpandige garage werd in 2002 grondig gerenoveerd en uitgebouwd, is gelegen op 558m2 eigen grond en grenst direct aan prachtige vrije natuur. 
Dit is niet alleen een huis, maar een plek waar u geniet van ruimte, rust en comfort, perfect afgestemd op uw wensen en de toekomst.
 
Ruimte en comfort in een modern ontwerp:
 
De woning biedt alles wat u nodig heeft voor comfortabel en zorgeloos wonen. Met een prachtige grote woonkamer met sensationeel panorama zicht over Limburgs natuurschoon, een slimme indeling, twee badkamers, 3 toiletten en een grote garage is deze woning ideaal voor jong en oud. Het kavel is perfect op de zon gelegen, wat niet alleen bijdraagt aan een ‘lichte’ woning, maar ook mogelijkheden biedt voor een zonovergoten tuin waar u het hele jaar door kunt genieten. Tevens beschikt de woning over een overdekt terras met een terras-heater, om zo optimaal te kunnen genieten buiten en het uitzicht, ook tijdens de wat frissere dagen en avonden. 
 
Tijdens de verbouwing werd uitsluitend gebruik werd gemaakt van kwalitatieve bouwmaterialen, zo werd de achterpui geheel uit aluminium vervaardigd en werd niet alleen de woning maar ook de tuin rondom opnieuw doordacht aangelegd. 
 
Plan vandaag nog een bezichtiging!
 
Bent u nieuwsgierig geworden naar deze unieke woning? Aarzel niet en neem contact met ons op voor meer informatie of een bezichtiging. 
Dit is een kans die u niet wilt missen – een droomhuis op een droomlocatie!

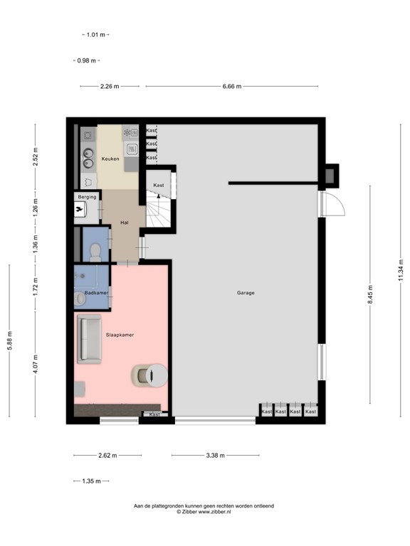
Indeling

Begane grond
 
Entree met een grote hal en toilet - lichte woonkamer met patio, halfopen verbinding met keuken, welke is voorzien van alle moderne inbouw comfort - makkelijke toegang naar de beneden gelegen bijkeuken met evenzo hier een keukenopstelling welke is voorzien van alle witgoedaansluitingen. Via de entree tevens toegang naar twee ruime slaapvertrekken (van resp. 14,8 en 17,8 m2), grote slaapkamer voorzien van eigen badkamer met dubbele wastafel, douche, bad en toilet.
 
Souterrain 
 
Overloop - 3de slaapvertrek (18,7 m2) - 2de badkamer met wastafel en douche – separaat toilet - keukenopstelling - ruime garage (47,8 m2) - open berging (16,8 m2) 
 
Wonen in harmonie met de natuur
De ligging van de woning is een droom: grenzend aan een rustige weide, met volop mogelijkheden om te genieten van het buitenleven. Het vrije uitzicht en de zonnige ligging maken deze plek uniek.

Bijzonderheden

Unieke kenmerken:
 
-	Onder architectuur grondig en slim opnieuw opgebouwd / gerenoveerd en uitgebouwd. 
-	Hoogwaardige afwerking en modern comfort, gecombineerd met landelijke rust.
-	Alle voorzieningen voor gelijkvloers wonen en slapen, met extra ruimte en volop mogelijkheden in de benedenverdieping.
-	Royale woonkamer met sfeervolle gashaard en  ‘transparante’ achterzijde welke is voorzien van elektrische screens.
-	Royale kavel, perfect voor tuinliefhebbers.
-	Vrij uitzicht, geniet van een serene omgeving met volop privacy.
-	Perfect op de zon, ideale ligging voor maximale lichtinval en energieopbrengst.
-	Energielabel A, i.c.m. zonnepanelen, recente HR Cv-ketel (2021), SGG CLIMAPLUS N beglazing en deels vloerverwarming is deze woning klaar voor een duurzame toekomst.
-	Ruime inpandige garage voor 2 personenwagens en veel bergruimte. 

De waarborgsom/bankgarantie bedraagt 10% van de koopsom. De koper dient deze 2 weken ná het vervallen van de ontbindende voorwaarden bij de desbetreffende notaris te deponeren;
• Koper is te allen tijde gerechtigd voor eigen rekening een bouwkundige keuring te (laten) verrichten dan wel andere adviseurs te raadplegen teneinde een goed inzicht te verkrijgen over de staat van onderhoud.
• Ter bescherming van de belangen van zowel koper als verkoper, wordt uitdrukkelijk gesteld dat een koopovereenkomst met betrekking tot deze onroerende zaak eerst dan tot stand komt nadat koper en verkoper de koopovereenkomst hebben getekend (“schriftelijkheidsvereiste”);
• De termijn die wordt opgenomen voor eventuele (overeengekomen) ontbindende voorwaarden (bv. Financiering) is in de regel 4 tot 6 weken na het sluiten van de mondelinge wilsovereenkomst.

Bunde (Limburgs: Bung) is een dorp, dat deel uitmaakt van de Nederlands-Limburgse gemeente Meerssen. Samen met het dorp Meerssen vormt het een dichtbevolkte omgeving ten noorden van Maastricht. De autosnelweg A2 vormt de fysieke scheiding tussen deze twee kernen. Bunde telt per 1 januari 2023 5.485 inwoners. Tot 1 januari 1982 was het een zelfstandige gemeente.
Bunde heeft verschillende winkelvoorzieningen, waaronder supermarkten, bakkerijen, slagerijen en diverse lokale boetieks en speciaalzaken.

Kenmerken